Goshen Phone Bid Real Estate Auction, Ends April 23rd

Rare Unicorn: Updated 3-Bed Home on 5+ Wooded Acres in Goshen, IN – Walk to Fairfield High School!
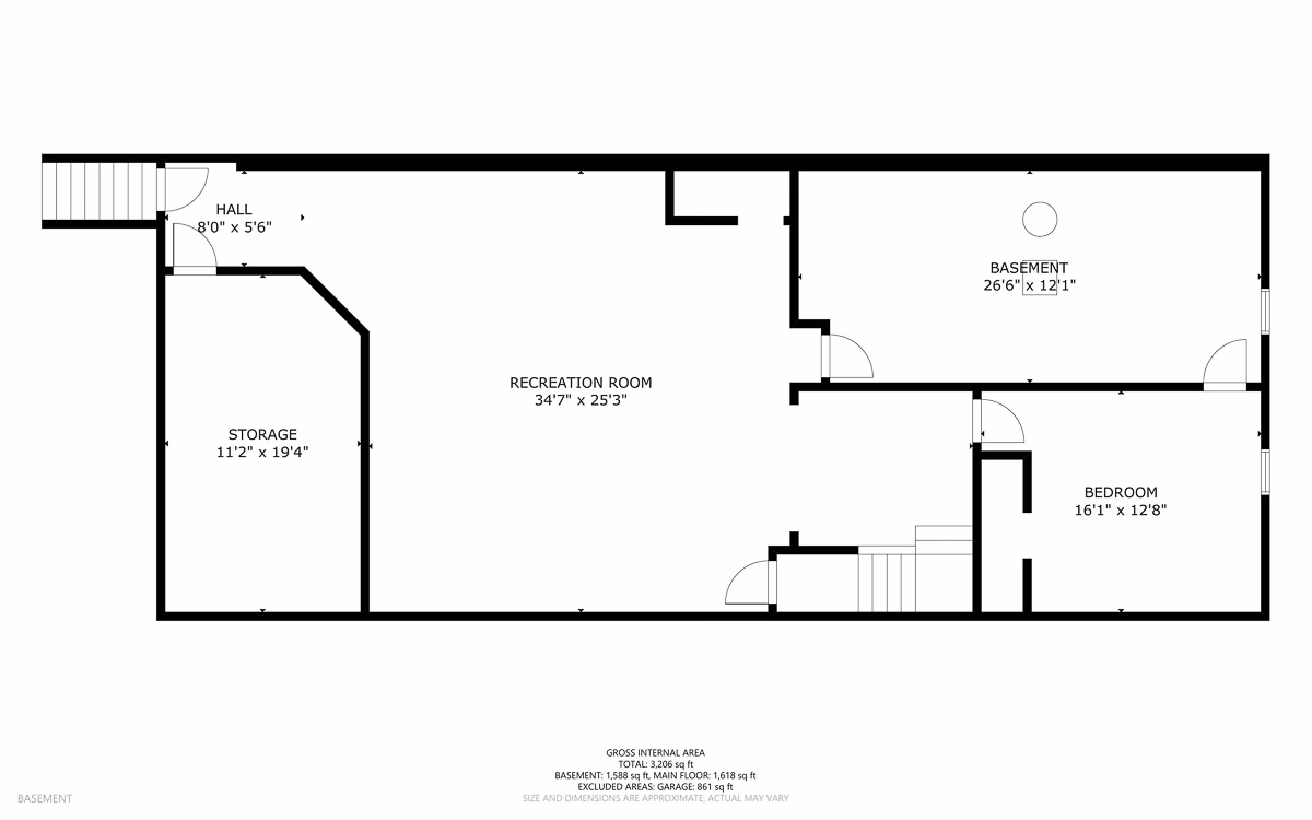
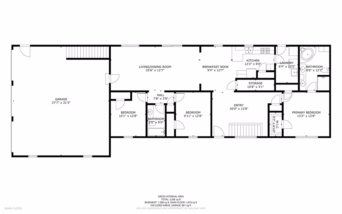
A unicorn in today’s real estate market! This three-bedroom, two full-bath home sitting on 5.04 partially-wooded acres is nestled just south of downtown Goshen within walking distance to Fairfield High School. Incredible amount of updates including steel roof, new deck, 6″ gutters, Jacuzzi tub, electricity in the shed, and a whole-home natural gas generator! All appliances, freezer, and safe stay with the home! Full finished basement with gas fireplace, staircase access to the 3-car attached garage makes for easy in and out!
Terms:
$5,000 down, non-refundable, due upon acceptance of purchase agreement. Closing to be within approximately 45 days after conclusion of auction, with immediate possession. All taxes are prorated and are approximately $2,377.68/yr. Sellers have the right to accept or reject any and all bids submitted. Any announcements made day of sale shall take precedence over printed material.
Agency:
Grog-Martin Auctioneers & Realty and staff members are exclusive agents of the sellers.
Disclaimer:
Prospective bidders are responsible for making their own inspections of the property with regards to condition, environmental, zoning, permits, and any and all other inspections and approvals as may be necessary. All sizes, dimensions, and taxes are approximate.
Property Location
SHARE THIS PROPERTY WITH YOUR FRIENDS
Auctions & Real Estate
Goshen Phone Bid Real Estate Auction, Ends April 23rd
Property Location: 66920 Co Rd 31, Goshen, IN 46528 Auction End Date: April 23, 2026 at
GET IN TOUCH
If you have questions about our services, or you’d like to join our mailing list, we’d love to hear from you!
PEOPLE ARE TALKING ABOUT US
Always a good place to go to get a item of your choosing.
All the auctioneers and ring clerks and workers are funny, honest, and try their best to get it all right to please bidders and consignees alike!








































